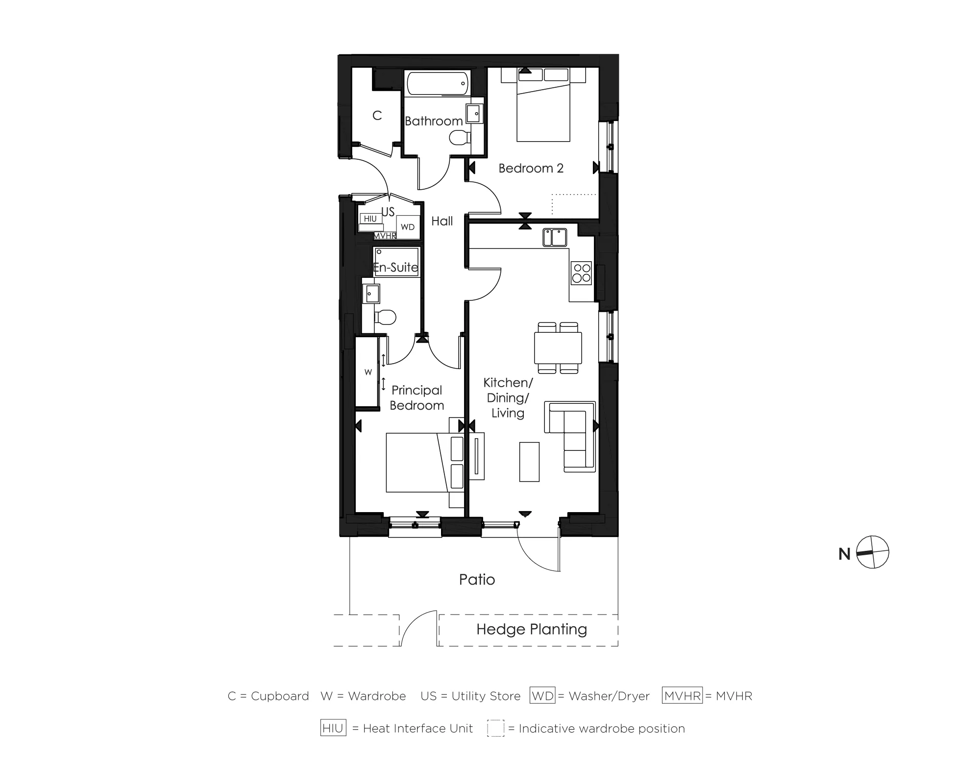
Apartment 869
Show apartments open daily - come and visit!
- £371,000
-
2bedrooms
-
2bathrooms
Apartment 869
- Price:
£371,000
- Bedrooms:
2
- Bathrooms:
2
- Directions and opening times
Dagenham Green, 2 bedroom show home, living space
Welcome to Dagenham Green, an inspiring new vision for the future of this vibrant and diverse East London community. Imagine a place with everything you need: gardens, a park and boardwalk, shops, a school, a social hub and cafés. Dagenham Green will offer just that – a whole neighbourhood for you to enjoy.
Step into Apartment 869, where stylish living meets everyday convenience! This 2-bedroom, 2 bathroom home with a modern kitchen that’s sure to impress. Picture this: sleek, matt-finish handleless units with soft-close doors and drawers, a stunning Caesarstone worktop, and a splashback behind your induction hob. Cooking is a breeze with integrated Bosch appliances like a single oven, microwave, dishwasher, fridge/freezer, and even a cooker hood—all seamlessly designed into the space. There's also a stainless steel undermounted sink, complemented by a brushed steel mixer tap, and to top it all off, LED lighting under the wall units adds a beautiful touch of ambiance. The freestanding washer/dryer is neatly tucked away in the hallway cupboard. Kitchen designs may vary, so be sure to check in with our Sales Executives for the finer details!
In the bathroom and en-suite, you’ll enjoy a soak in the tub with a glass shower screen, framed by large-format wall and floor tiles for that polished look. The heated chrome towel rail keeps things toasty, and the vanity tops perfectly match the bath panel. There's even a feature mirror with a shelf—great for all your essentials.
As for the rest of the apartment? You'll love the stylish Amtico flooring throughout the entrance hall, kitchen, dining, and living areas, while the bedroom features soft, cosy carpet for ultimate comfort.
Location-wise, you couldn't ask for more! Dagenham Dock train station is right on your doorstep, whisking you into central London in just 21 minutes. Prefer the Tube? Dagenham Heathway station is only a 15-minute stroll away, giving you access to the District Line. Shopping fans will be in heaven, with Lakeside Shopping Centre a quick 16-minute drive and Bluewater just 24 minutes away, offering all the retail therapy and dining you could dream of. And for the ultimate shopping experience, Westfield Stratford City, home to over 300 shops, is just a 22-minute train ride away.
Families are well-catered for too, with plenty of highly-rated schools nearby. From nurseries to secondary schools, many are rated Good or Outstanding by OFSTED, so you can rest easy knowing your child’s education is in good hands. Plus, there's even a new secondary school planned for Dagenham Green in the near future.
If you love the great outdoors, you're spoiled for choice! Central Park, Goresbrook Park, and Old Dagenham Park are perfect for a peaceful stroll or a morning run. If you’re up for more adventure, Beam Valley and Ingrebourne Hill Country Parks are great for cycling and horse riding. Looking for something a bit different? Rainham Marshes Nature Reserve offers a tranquil escape, and if you're craving a breath of sea air, the coast is less than an hour away.
Dagenham Green will offer residents the option to have access to a car club for those who would like the convenience of using a car without the responsibility of ownership. This eco-friendly service allows residents to book shared vehicles as needed, helping to reduce the number of private cars on the road and promoting sustainable living. It’s the perfect solution for those who want the flexibility of having a car when required, without the associated costs and upkeep.
Dagenham Green isn’t just a place to live—it’s the perfect balance of modern comfort, easy access to London, excellent schools, and outdoor escapes. Ready to call it home?
- Tenure:
- Leasehold
- Service charge:
- £2956.00
- Time remaining on lease:
- 999 years
Features
Showhome and Sales & Marketing Suite open daily - come and visit!
Two-minute walk to Dagenham Dock station
Trains into Zone 1 in 21 minutes
Embrace East London living with everything on your doorstep
Beautifully landscaped gardens, 5-acre central park with The Boardwalk
Brand new secondary school planned in a future phase
Premium specification with underfloor heating to every apartment
Residents car club
- Tenure:
- Leasehold
- Service charge:
- £2956.00
- :
- :
- Time remaining on lease:
- 999 years
What 3 Words: ///tamed.cheer.lance
