The Liberty, Number 556
Dagenham, London, RM9 6PE Directions and opening times
- £395,000
-
2bedrooms
-
1bathrooms
The Liberty, Number 556
- Price:
£395,000
- Bedrooms:
2
- Bathrooms:
1
- Directions and opening times
The Liberty, Number 556
Dagenham Green, Dagenham
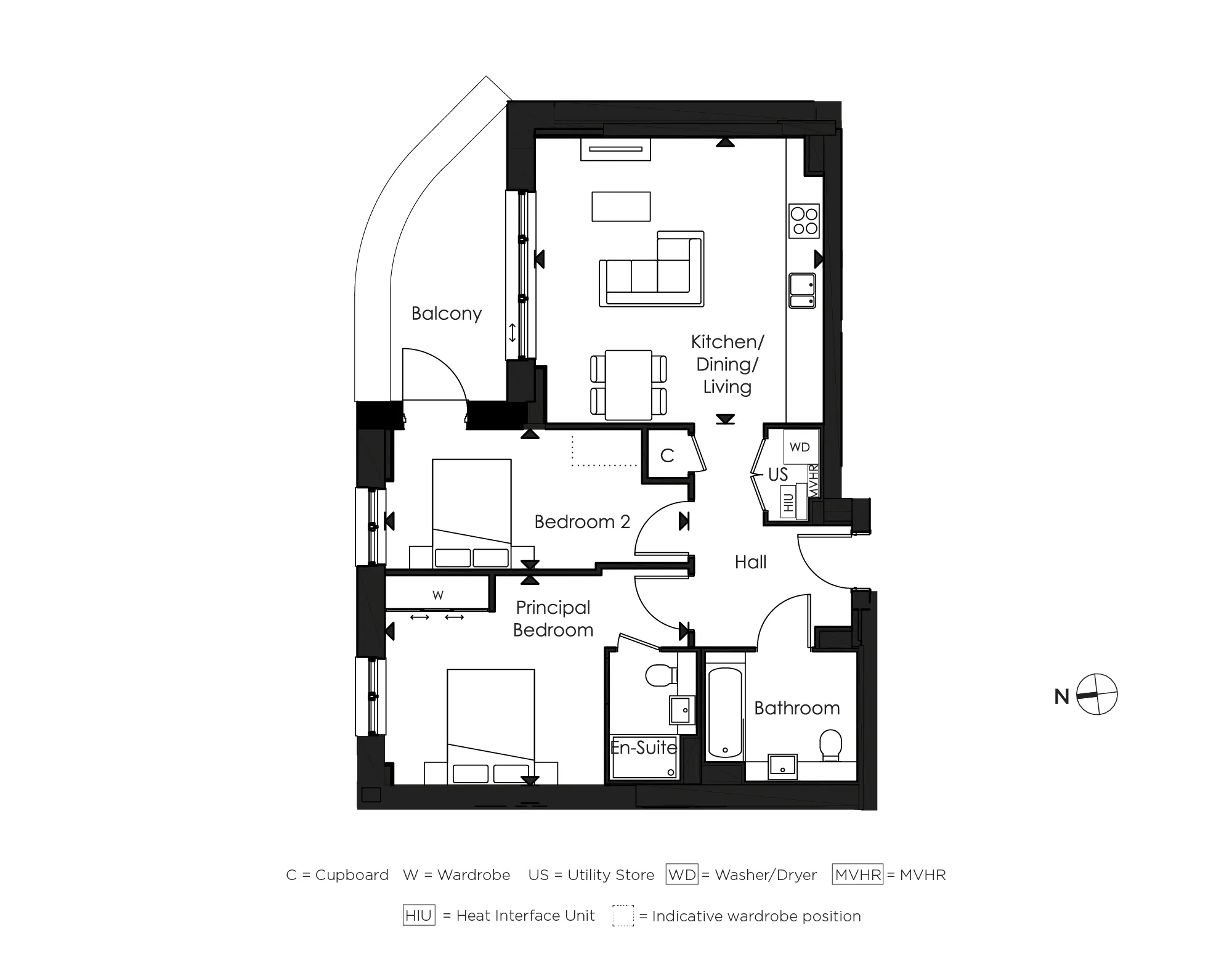
A stylish sixth-floor apartment within the striking Liberty block, standing 18 floors tall and offering access to a private podium garden. The property provides 806 sq ft of well-designed living space, featuring a bright open-plan kitchen, dining, and living area that leads onto a private balcony. Finished to a high specification, it includes integrated Bosch appliances, underfloor heating, and two spacious double bedrooms, including a principal en-suite. Set within a well-connected development with future amenities such as an on-site Sainsbury’s, 5-acre Central Gardens, and excellent links into Central London.
Property Highlights:
- The open-plan kitchen, dining, and living area is designed for both relaxation and entertaining, with direct access to a private balcony that extends your lifestyle outdoors.
- Two Modern bathrooms with full bathtub, underfloor heating and fitted mirrors.
- Two well-proportioned double bedrooms are finished with soft, plush carpeting, while the principal bedroom benefits from a private en-suite, and bedroom 2 leading onto the balcony, creating a peaceful and private retreat.
- Secure, contemporary living with fob-controlled access to the entrance lobby and a video entry system to each apartment, ensuring everyday peace of mind.
A Lifestyle at Dagenham Green
Become part of a lively, welcoming neighbourhood at Dagenham Green, where vibrant local amenities, nearby retail parks, and beautiful green spaces come together to create a convenient, active lifestyle.
- Live seamlessly with Merrielands Retail Park just a 6 minute walk away, perfect for shopping, everyday needs and casual dining.
- Enjoy leisure and entertainment at Dagenham Leisure Park, only around an 8 minute walk, where you can catch the latest films at Vue Cinema, enjoy bowling, or grab a bite with friends.
- A variety of local cafés and eateries are just minutes away, including Panku at Asda and other quick‑bite options near the retail park.
- Stay active with fitness and social activities close by, including gym facilities at Merrielands and sports areas within Goresbrook Park, encouraging a healthy, active lifestyle just moments from home.
- The development will include a Sainsbury’s Local, concierge services, a dedicated work hub, and an entertainment room, providing residents with convenient and well-appointed on-site amenities.
- Explore Goresbrook Park, Eastbrookend Country Park, and The Chase Local Nature Reserve, offering walking trails, wildlife habitats, and open areas perfect for relaxation, exercise, and outdoor adventures.
Seamless Travel & Connections
Life at Dagenham Green keeps you seamlessly connected, whether commuting, travelling for work, or enjoying a weekend escape.
- Dagenham Dock railway station is just a 2-minute walk away, making journeys quick and convenient.
- Dagenham Heathway Underground station is a short walk from the property and provides convenient access to Central London via the District line.
- Reach London Zone 1 in just 21 minutes, with easy access to Stratford and Canary Wharf for work or leisure.
- The development offers excellent transport links, with West Ham reachable in 11 minutes, and Canary Wharf just 7 minutes from there.
- The nearby road network provides flexible routes across London and beyond, keeping your commute stress-free.
- London City Airport and London Stansted Airport are within easy reach, making national and international travel simple.
Discover your Future Home
Arrange a visit with our sales team and tour our show homes at Dagenham Green
Sales Suite: Dagenham, London, RM9 6PE
Opening Times: Open daily, 10:00–17:30
Email: [email protected]
*Deposit Contribution terms and conditions apply, maximum 5% deposit contribution. Not to be used in conjunction with any other offer. Speak to the sales team for further information.
- Tenure:
- Leasehold
- Service charge:
- £3280.00
- Time remaining on lease:
- 999 years
Features
We can boost your deposit by £19,750*
806 SqFt 6th floor 2-bedroom, 2-bathroom apartment
Open-plan kitchen/dining/living room with doors flowing onto a private balcony with views of Canary Wharf
Fully integrated kitchen fitted with high-quality Bosch appliances
Two double bedrooms, including principal bedroom with built-in wardrobe and en-suite
Utility space with freestanding Bosch washer/dryer included
Underfloor heating throughout & Amtico flooring at no extra cost
BT Openreach and Hyperoptic cabling installed for a superfast broadband connection
- Tenure:
- Leasehold
- Service charge:
- £3280.00
- :
- :
- Time remaining on lease:
- 999 years
What 3 Words: ///tamed.cheer.lance
