Apartment 926 The Empire Apartments
Dagenham, London, RM9 6PE Directions and opening times
- £307,000
-
1bedroom
-
1bathroom
Apartment 926 - The Empire Apartments
- Price:
£307,000
- Bedrooms:
1
- Bathrooms:
1
- Directions and opening times
Dagenham Green 1 bed show apartment
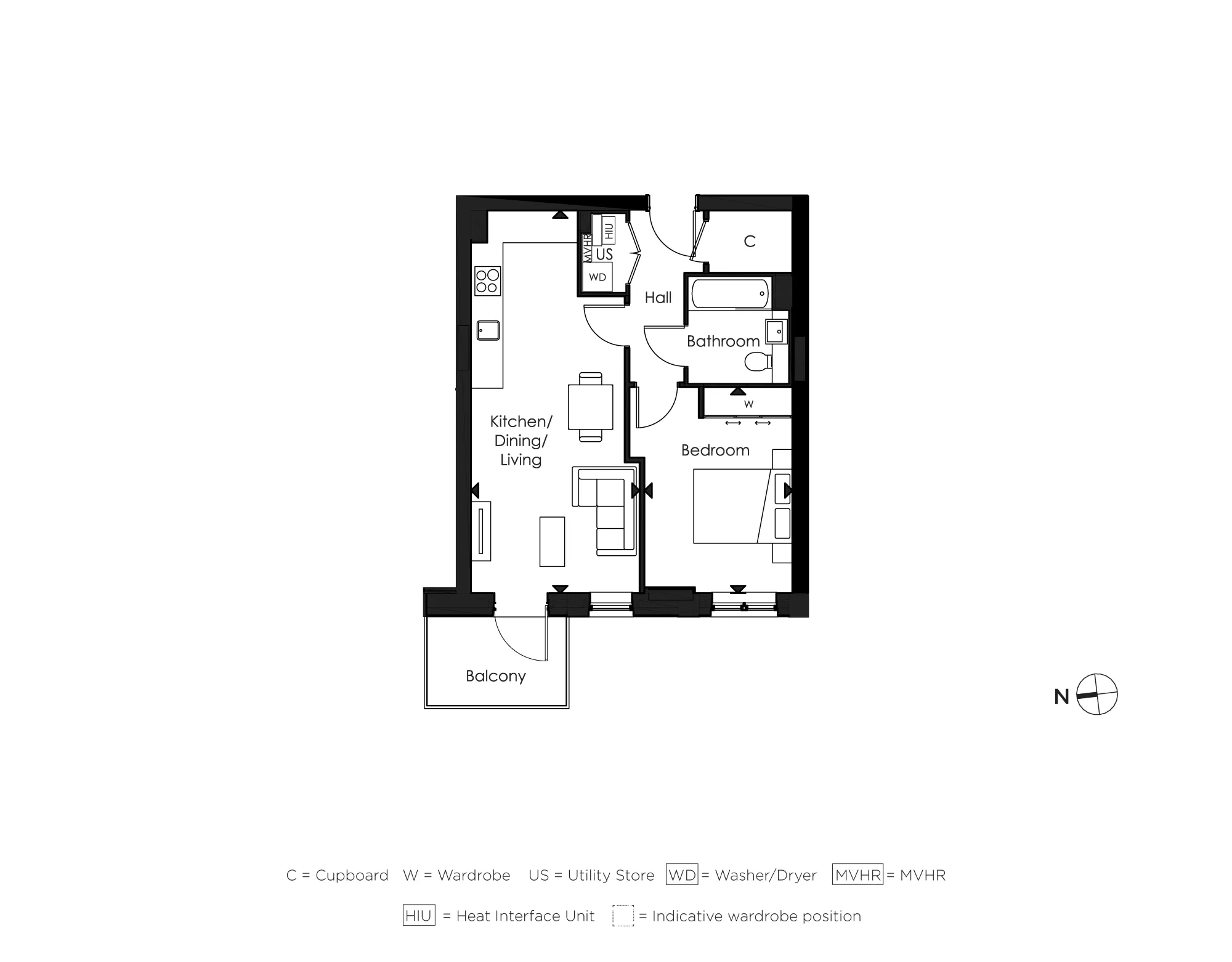
This 8th floor home is just a 2-minute walk from Dagenham Dock Station and ready to move in by the end of the year. Offering 544sqft of carefully crafted space including a private balcony.
Sales Suite Address: Dagenham, London, RM9 6PE. Opening Times: Monday - Sunday, 10:00 - 17:30.
Apartment 926 is a 8th floor 544sqft 1-bedroom West-facing home in The Empire with unobstructed views looking over the landscaped central park.
Property Highlights
- Double bedroom with fitted wardrobes
- Spacious private balcony
- Ample storage solutions - including a utility cupboard with a washer dryer
- Underfloor heating throughout
- Lift access to all floors
- Pre-wired BT & Hyperoptic fibre connection as well as Sky Q Connection
Out and about
A neighbourhood designed with everything you could want: a residents’ concierge, landscaped gardens, a park with a boardwalk, local shops, a school, community spaces, cafés, and five acres of green space on the way.
Close to the development, Dagenham Green is surrounded by a wide range of amenities, including:
- Merrielands Retail Park – featuring major homeware brands and your local PureGym
- Dagenham Leisure Park – catch the newest films at Vue Cinema Dagenham or enjoy a game of bowling
- Goresbrook Park – offering a skate park, basketball and 5-a-side courts, plus 9.5 acres of open green space
- Old Dagenham Park – an informal recreation area with outdoor bowling, a wheel park and tennis courts
- Eastbrook Studios – London’s largest film and video production campus
For shopping and entertainment further afield, Lakeside Shopping Centre is a 16-minute drive, while Bluewater is just 24 minutes away, both offering extensive retail, dining and family activities. Westfield Stratford City, with more than 300 stores, sits a short walk from Stratford Station, only 22 minutes by train from Dagenham Dock. Travel a little beyond Stratford and you’ll find yourself in central London, the capital’s shopping, dining and cultural hotspot.
Transportation
Dagenham Dock Station is a 2-minute walk, with central London just 21 minutes away, and Canary Wharf in 24 minutes. The District line is also within easy reach via Dagenham Heathway. The A13 is a 4-minute drive, connecting to the M25 in 15 minutes and the Essex coast in under an hour.
Next Steps
Contact our sales team to arrange a tour of our Show Apartments and discover how life at Dagenham Green could take shape.
- Tenure:
- Leasehold
- Service charge:
- £2133.00
- Council tax band:
- TBC
- Time remaining on lease:
- 999 years
Features
Move in by the end of the year
Residents car club
Never miss a parcel with our residents concierge
Approx. 544sqft
Private balcony
Excellent transport links to Canary Wharf and central London
Experience the magic of a new home this year, and with our festive bauble incentive you could receive a luxury gift^
24 minutes to Canary Wharf from Dagenham Dock Station
Need help with your deposit? Speak with our team about our 5% deposit boost*.
*Deposit Boost - Offer is subject to terms and conditions, up to the value of 5% of purchase price, selected plots only. The offer cannot be used in conjunction with any other offer. Valid for a limited time. Please contact a member of our sales team for more information.
^Bauble incentive only available upon reservation, gift will be received upon completion, luxury gifts vary. Incentive ends 31 December 2025, T&C’s apply. Speak with our sales team to find out more information.
- Tenure:
- Leasehold
- Service charge:
- £2133.00
- :
- Council tax band:
- TBC
- Time remaining on lease:
- 999 years
